Ampio appartamento vicinanze centro storico con ascensore e
€ 218.000
Reggio Emilia, zona Gardenia
Dettagli
Contratto Vendita
Rif Re301
Prezzo € 218.000
Provincia Reggio Emilia
Comune Reggio Emilia
Zona Gardenia
Indirizzo Via Fabio Filzi 2">
Vani 4
Camere 3
Bagni 2
Classe energetica
F (DL 192/2005)
EPI 255.22 kwh/m2 anno
Piano 4 / 4
Riscaldamento centralizzato
Condizioni abitabile
Spese condominiali € 141
Anno di costruzione 1965
Arredato si
Ascensore si
Cucina cucinotto
Consistenze
| Descrizione | Superficie | Sup. comm. |
|---|---|---|
| Principali | ||
| Immobile - 4° piano | 135 Mq | 135 Mqc |
| Accessorie | ||
| Box/Garage - piano interrato | 25 Mq | 12 Mqc |
| Totale | 147 Mqc | |
Appartamento di 135mq in una zona residenziale molto apprezzata per la vicinanza al centro storico e per la comodità ai principali servizi: scuole, supermercati, mezzi pubblici, aree verdi e attività commerciali sono tutti raggiungibili a piedi.
Un contesto tranquillo e ben abitato, ideale per chi desidera vivere a pochi minuti dal cuore della città senza rinunciare alla praticità quotidiana.
Il Palazzo
L'edificio, costruito negli anni '60, si presenta in buone condizioni e dispone di ascensore. L'appartamento si trova al 4° ed ultimo piano, una posizione che assicura grande luminosità, riservatezza e una piacevole vista aperta sui tetti della città.
L'Appartamento
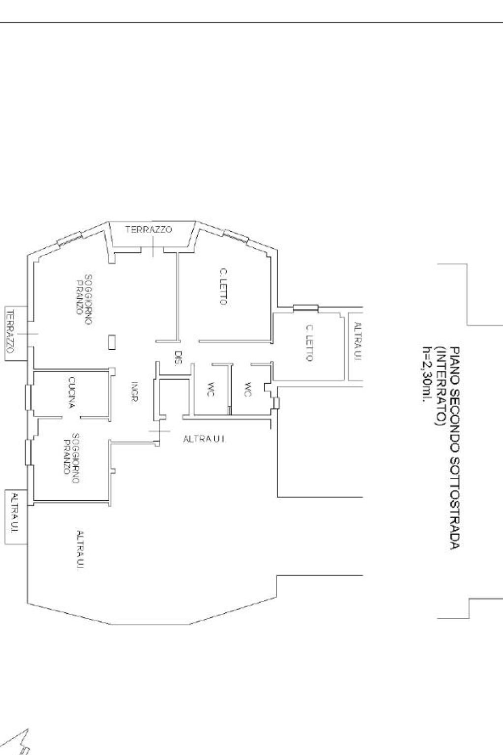
L'abitazione si distingue per gli spazi ampi e ben distribuiti.
L'ingresso si apre su un grande disimpegno che conduce alla sala da pranzo con cucinotto separato e ad un ampio soggiorno.
Quest'ultimo ambiente, originariamente progettato per ospitare una terza camera da letto, mantiene dimensioni tali da consentire comunque un comodo soggiorno anche in caso di suddivisione, rendendo l'immobile perfetto per famiglie numerose o per chi desidera uno spazio versatile.
Due balconi completano la zona giorno, offrendo luminosità e spazi esterni ideali per momenti di relax.
Zona notte
Un ampio corridoio introduce alla zona notte composta da una spaziosa camera matrimoniale, una camera singola e due bagni finestrati, entrambi ristrutturati nel 2015 insieme alla cucina e all'impianto elettrico.
L'esposizione nord-ovest garantisce ambienti ben arieggiati e una luce naturale costante durante il giorno.
Pertinenze
Completano la proprietà un garage di circa 25 mq commerciali, adatto anche ad auto di grandi dimensioni o per uso magazzino, e una cantina, perfetta come deposito o locale di servizio.
Per ulteriori informazioni potete contattarci al 0522706675-3332085428 oppure inviateci un e-mail a studioimmobiliarebaluci@gmail.com
Un contesto tranquillo e ben abitato, ideale per chi desidera vivere a pochi minuti dal cuore della città senza rinunciare alla praticità quotidiana.
Il Palazzo
L'edificio, costruito negli anni '60, si presenta in buone condizioni e dispone di ascensore. L'appartamento si trova al 4° ed ultimo piano, una posizione che assicura grande luminosità, riservatezza e una piacevole vista aperta sui tetti della città.
L'Appartamento
L'abitazione si distingue per gli spazi ampi e ben distribuiti.
L'ingresso si apre su un grande disimpegno che conduce alla sala da pranzo con cucinotto separato e ad un ampio soggiorno.
Quest'ultimo ambiente, originariamente progettato per ospitare una terza camera da letto, mantiene dimensioni tali da consentire comunque un comodo soggiorno anche in caso di suddivisione, rendendo l'immobile perfetto per famiglie numerose o per chi desidera uno spazio versatile.
Due balconi completano la zona giorno, offrendo luminosità e spazi esterni ideali per momenti di relax.
Zona notte
Un ampio corridoio introduce alla zona notte composta da una spaziosa camera matrimoniale, una camera singola e due bagni finestrati, entrambi ristrutturati nel 2015 insieme alla cucina e all'impianto elettrico.
L'esposizione nord-ovest garantisce ambienti ben arieggiati e una luce naturale costante durante il giorno.
Pertinenze
Completano la proprietà un garage di circa 25 mq commerciali, adatto anche ad auto di grandi dimensioni o per uso magazzino, e una cantina, perfetta come deposito o locale di servizio.
Per ulteriori informazioni potete contattarci al 0522706675-3332085428 oppure inviateci un e-mail a studioimmobiliarebaluci@gmail.com
Richiedi maggiori informazioni
Mappa
Zoom della mappa
Apri con:
Apple Maps
Google Maps
Waze
Contattaci
Immobiliare Global Reggio Emilia
Via Emilia All'Angelo, 33/C 42121 REGGIO EMILIA (RE)
Via Emilia All'Angelo, 33/C 42121 REGGIO EMILIA (RE)
P.IVA: 03024410353
+390522706675





